壊せない壁をデザインに活かす!両面収納で空間を美しく整える|キッチン・リビングリフォーム(三重県四日市市の施工事例)
TDYリモデルスマイル作品コンテスト2016
「自由空間部門」全国入賞
リモデルのポイント
店舗兼住宅だった建物。既存の店舗スペースも取り込み、大空間のLDKを造りました。
中央の撤去できない壁をゾーニングとして活かし、両面使いでキッチン収納とリビング収納に。
店舗の入口は来客用玄関として飾り棚を設け、正面のテーブルの足下が目に入らないよう配慮しました。
- 取れない壁の両面をそれぞれ収納に
- 間仕切りや飾り棚になるフィットシェルフ
- リビング側はスッキリ幕板仕様
- 書斎スペース
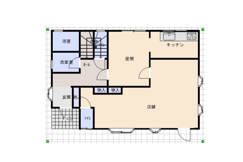
図面
- 【リモデル前】
- 【リモデル後】
お施主様の声
収納がぐんと増えたので、キッチンにいてもリビングにいても、片付けの手間が省け、のんびり過ごせる時間が増えました。
あちこちしまいに歩かなくても安心です。
なんといってもミセル収納のおかげです。
リビングから寝室へ、楽々出入りできるようになり、将来のもしもの時にも車いすの心配がなくなりました。
天井もクロスも床も、思い切って白にしたので、予想以上に明るいLDK空間になり、毎日、心身ともにリフレッシュ!
自然に笑顔になれるようになりました。
来客のお出迎えが楽しみでたまりません。(奥様)(*^o^*)
書斎スペ-スができたプラス、趣味の本等も気軽にしまえる収納ができたので家にいる時間が楽しくてたまりません。(ご主人)(*^o^*)
TOTOリフォーム情報サイトでも紹介中!→こちらをクリック
TDYリモデルスマイル作品コンテスト結果ページ→こちらをクリック
施工データ
| 築年数 | 33年 |
|---|---|
| 工事面積 | 78㎡ |
| 工事期間 | 55日 |
| 使用設備 | 【リビング】収納:DAIKEN(フィットシェルフ・MiSEL)、【キッチン】システムキッチン:クリナップ(クリンレディ) |
| 空間仕様 | 【キッチン・リビング】床:DAIKEN(ハピフロア)、ドア:YKK AP(ドアリモ) |
施工前の様子
自宅と店舗を兼ねていたため、今となっては間取りがとにかく気になるところです。
広いわりに、収納がほとんどありません。






