三重県四日市市 O様邸 玄関・外回りリフォーム
リモデルのポイント
・砂利のまま未舗装だった庭を将来の車椅子利用を見据え、屋根付きの駐車場へと整備する。
・日々の動線が無理なく繋がるよう、庭に面した位置に増築スペースを計画し、生活空間を1階に集約する。
・1階での自炊は諦めていただき、申請不要の10㎡以内に収めることで、短期間の施工を実現する。
・徹底したバリアフリー設計。
- 居室に直結したアプローチ
- 真っ直ぐでシンプルな生活動線
- 全てが手に届くミニマル水廻り
- 玄関まわりの動線を妨げない収納
- 必要な消耗品をスマートにたっぷり収納
- 車椅子でも手が届きやすいよう洗面レバーを手前に設置
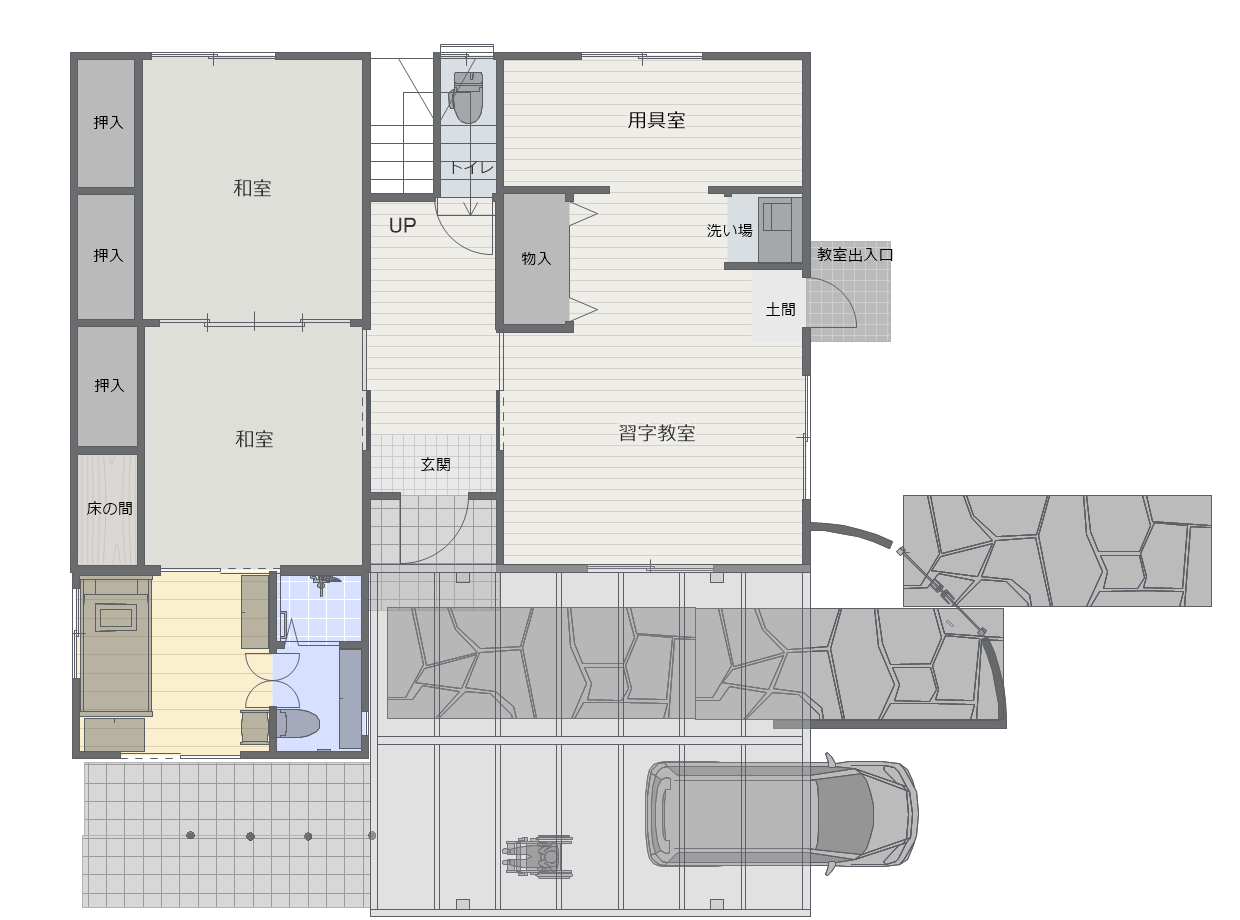
図面
- 【リモデル前】
- 【リモデル後】
お施主様の声
短い工期にも関わらず、本当に丁寧に、そして親身になってご対応いただき、心からありがたく、心強く感じました。
新たに増築していただいた空間は、車椅子での生活も想定されていて、出入口は広々としていて、 雨の日でも濡れることなく駐車場から部屋に入れるようになっており、 まさか車椅子で部屋に直接入れるようにできるなんて、思ってもみませんでした。 水まわりもほとんど歩かずに使用できる設計になっていて、日々の生活がとても快適です。
限られたスペースの中にも、使いやすさや動線の工夫が随所にちりばめられていて、 「この小さな空間に、ここまでの配慮をいただけるなんて…」と感動しました。
退院後、この家に帰ってきた瞬間、 “この家ならきっと大丈夫”と自然に思えたことが、何より嬉しく、心に残っています。
TOTOリフォーム情報サイトでも紹介中!→こちらをクリック
施工データ
| 築年数 | 16年 |
|---|---|
| 工事面積 | 9.9㎡ |
| 工事期間 | 40日 |
| 使用商品 | 【浴室】シャワーユニット:TOTO、【洗面所】洗面台:DAIKEN(MiSEL)、【トイレ】ネオレスト:TOTO |
| 空間仕様 | 【洗面所】天井・床・壁:サンゲツ |
外回り
生活空間が全て2階。 入院して身体の自由がきかなくなり、階段のある生活に不安がある。
庭は砂利のままで未舗装のため、気を抜くと草ボーボーに。
雨天時に水たまりや滑りの危険性もあり、割石のアプローチだけだと、足元に不安が残る状態。
玄関
車椅子利用で退院の可能性もあり、玄関の出入りが難しい。
たとえ介助が必要な身体になったとしても安心して暮らせる空間に整えたい。







